2025년 의성 청춘가 하반기 청년주거지 입주자 모집
의성군에 거주하거나 유입 후 정착하여 지역 내에서 활동하는 다양한 청년들을 위해 조성된 청춘가 청년주거지의 입주자를 모집합니다.
* 1인당 최대지원금은 1팀당 최대지원금일수도 있으며, 상황에 따라 여러형태로 변하기때문에 본문 혹은 공고문에서 여행지원금 항목을 디테일하게 체크하시기 바랍니다.
■ 모집인원 및 임대료

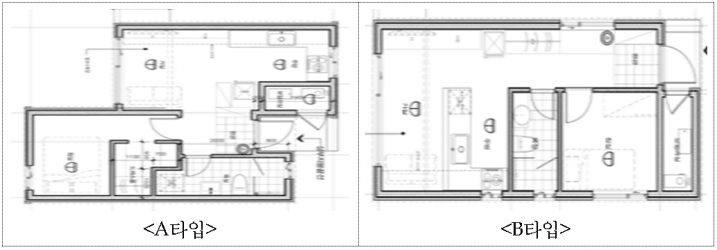
■ 시설현황 및 평면도


1. 모집현황
- 위치 : 경상북도 의성군 안계면 안계길 120-14(용기리 475-1번지)
- 거주형태 : 다가구주택
- 계약기간 : 2025. 7. 1. ~ 2027. 6. 30. ※ 24개월, 최대 1회 연장 가능
- 모집인원 및 임대료 : 3명, 보증금 100만 원, 월 임대료 26만 원
2. 신청자격
- 신청대상 : 공고일 기준 만 19세 이상 만 45세 이하 청년
※ (우대) 2023년부터 의성군에서 추진하는 청년지원 사업에 참여하여 현재 활동 중인 자(가점 5점)
[제외대상 ❌]
- 국가, 지방자치단체 등 공무원 및 교사에 해당하는 자
- 기타 군수가 신청 제외함이 타당하다고 인정하는 자
3. 접수안내
- 접수기간 : 2025. 6. 2.(월) ~ 6. 16.(월) 18:00까지 ※ 중식시간(12:00~13:00) 제외
- 접수장소 : 의성군청 청년정책과 청년지원팀(경북 의성군 의성읍 안평의성로 1122-24)
- 접수방법 : 방문접수 또는 우편(등기)접수
- 제출서류 : 입주신청서, 자기소개서, 개인정보수집동의서, 주민등록초본(모집공고일 이후 발급본에 한해 인정, 주소이력 포함), 기타 증빙자료(활동경력 사항 등)
[💡 우편(등기) 접수 시 유의사항]
- 주소 : (37333) 경상북도 의성군 의성읍 안평의성로 1122-24, 의성군청 관광복지국 청년정책과 청년지원팀
- 우편접수의 경우 반드시 접수 여부를 유선으로 확인(☎ 054-830-6258)
- 우편접수 미확인 시 발생하는 모든 책임은 신청자 본인에게 있음
4. 선정안내
[선정절차]

※ 심사 일정은 대내외 사정에 따라 변경될 수 있으며 변경 시 사전 안내 예정
[선정방법]
- 1차 : 서류심사(신청 자격 여부 확인, 1차심사 합격자는 유선 통보)|2차 : 면접심사
- 서류심사 합격자 대상 면접심사 실시 후, 면접점수 고득점자 순 선발
- 면접 불참 및 심사위원 1인 이상 면접심사 점수 40점 이하는 자격 미달로 탈락 처리
- 동점자 발생 시 ①정착의지, ②활동계획, ③공동생활 자세 점수 순으로 결정
- 최종 선정 결과 홈페이지 공고 및 유선 통보
5. 계약 및 구비서류
- 계약체결 기간 : 2025. 6. 23.(월) ~ 6. 30.(월) 18:00까지
- 계약장소 : 의성군청 청년정책과
- 계약방식 : 별도 계약서에 의함
- 구비서류 : 신분증, 인감증명서(인감도장 포함) 또는 본인서명사실확인서 1부
* 대리인 참석 시 대리인 신분증, 위임장 및 가족관계증명서(가족일 경우) 추가 제출
* 기간 내 계약 미체결 시 입주 포기로 간주
- 입주기간 : 입주 계약일로부터 1개월 이내
* 입주 시 신청자의 전입신고(계약일로부터 1개월 이내)는 의무사항으로 주민등록등본(또는 주민등록초본) 1부 제출 후 주택 인도
* 보증금(1,000,000원)은 계약 시에 지불하고 확인 후 계약 체결
6. 기타사항
- 커뮤니티센터는 지역주민과 청년들의 공유공간으로 활용됨
- 설치된 가구, 가전제품 등은 임대목적물이 아니며, 개인사정에 따른 임의 교체 불가(*교체 시, 향후 원상복구 필수)
- 입주자 간 상호교류 및 협력을 위하여 입주민자치회를 구성해 공동생활규약을 제정 후 준수해야 함
- 입주기간 중 임대료 및 공공요금은 입주자 부담
[문의] 의성군청 관광복지국 청년정책과 청년지원팀(☎ 054-830-6258)
[출처] 의성군청 누리집



